4 月 7 日消息,特斯拉计划在美国佛罗里达州建设一座拥有超过 200 个充电桩的超级充电站,这将成为全球规模最大的超级充电站。
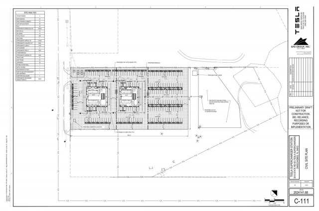
根据上个月特斯拉与奥西奥拉县 (Osceola County) 举行项目预申请会议时提交的场地规划,该超级充电站将位于 Yeehaw Junction,具体位置在 60 号州道 3010 号地块,靠近佛罗里达收费公路 193 号出口和 95 号州际公路的交汇处。
目前该计划尚处于初步阶段,规划显示该充电站将包含约 160 个 V3 超级充电桩和 40 个独立充电桩,其中包括 8 个供拖车使用的贯通式车位。根据特斯拉爱好者 MarcoRPi1 的消息,该项目将分三个阶段陆续建设并开放充电桩使用。
从文件中可以看到,GPD Group Inc. 公司负责该项目的施工,并且该场地规划中还包含最多 4 个兆瓦级电池储能装置 (Megapack),这些装置可能位于配电柜附近。


今年 2 月,特斯拉还提交了在加州克恩县 (Kern County) 建造一座拥有 164 个充电桩的超级充电站的计划,这也比目前任何在运营的超级充电站规模更大。目前,特斯拉运营的一些较大的超级充电站包括加州 Coalinga 的 Harris Ranch 超级充电站(拥有 98 个充电桩)和亚利桑那州 Quartzsite 的超级充电站(拥有 84 个充电桩)。
特斯拉目前正开始向其他电动汽车品牌开放超级充电站的使用权。上个月,特斯拉宣布其充电站对福特和 Rivian 的电动汽车开放。预计未来通用汽车 (GM)、极星 (Polestar) 和其母公司沃尔沃 (Volvo) 的电动汽车也将能够使用特斯拉的超级充电网络。
此外注意到,特斯拉正在加州洛杉矶打造一个拥有独特设计概念的超级充电站,该站将包含一个 50 年代风格汽车餐厅、一个双屏露天影院和大约 32 个充电桩。(远洋)
文章来自互联网,只做分享使用。发布者:叮当,转转请注明出处:https://www.dingdanghao.com/article/313220.html
