4月7日消息,特斯拉已计划在美国佛罗里达州建设一座规模空前的超级充电站。据悉,这座充电站将装配超过200个充电桩,有望成为全球最大的超级充电站。
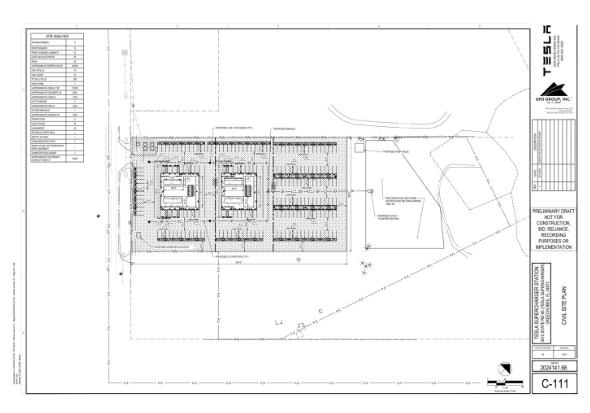
根据特斯拉与奥西奥拉县的项目预申请会议所提交的规划,新的超级充电站将坐落在Yeehaw Junction,博60号州道310号地块,地理位置十分优越,紧邻佛罗里达收费公路193号出口和95号州际公路的交汇点。

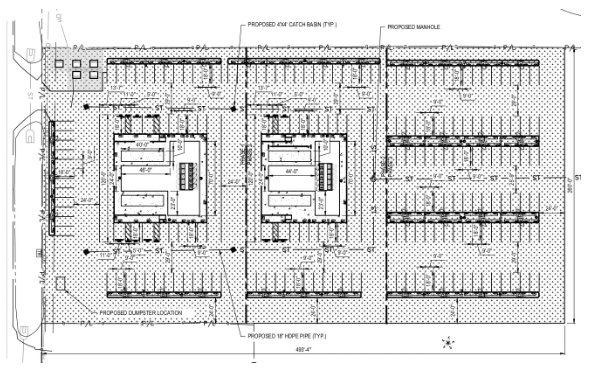
根据规划图显示,充电站将配备大约160个V3超级充电桩和40个独立充电桩,以满足不同类型的充电需求。其中还包括8个特别为拖车设计的贯通式车位。据特斯拉爱好者MarcoRPi1透露,该项目会分阶段进行,逐步建设并附设充电桩供公众使用。


此外,场地规划中还提及了最多可容纳4个兆瓦级电池储能装置(Megapack),这些高容量的电池储能系统预计会被安置在配电柜附近,以确保充电站的稳定运行。
特斯拉在今年2月还提出了在加州克恩县建造另一座拥有164个充电桩的超级充电站的构想,其规模也超过了目前运营中的任何超级充电站。在全球范围内,特斯拉已运营的大型超级充电站包括加州的Harris Ranch超级充电站和亚利桑那州的Quartzsite超级充电站,但它们与即将在罗里达州建设的新站相比,规模都显得逊色。
随着电动汽车市场的不断扩大,特斯拉也在逐步开放其超级充电站网络给其他品牌的电动汽车使用。此前,特斯拉已宣布其充电站对福特特斯拉的电动汽车开放,预计未来还将接纳更多品牌的电动汽车,如通用汽车、极星及其母公司沃尔沃等。
同时,特斯拉在加州洛杉矶还有一个独特的项目。那里正在建设一个融合了复古与现代设计的超级充电站,该站不仅包括充电桩,还计划打造一个50年代风格的汽车餐厅和一个露天双屏影院,为车主在充电期间提供休闲娱乐空间。
以上就是特斯拉佛罗里达超级充电站:规模创全球之最的详细内容,更多请关注叮当号网其它相关文章!
文章来自互联网,只做分享使用。发布者:叮当,转转请注明出处:https://www.dingdanghao.com/article/313928.html
